Surfaces commerciales
ADRESSE:
Grand-Pont 8 , 2087 Cornaux
CARACTÉRISTIQUES:
Immeuble avec des surfaces commerciale administratives et de stockage
SURFACE:
1107 m2
PRIX DE VENTE:
Sur demande
Un pôle d’activités moderne au cœur de Cornaux
Surfaces commerciales, administratives et artisanales modulables
Situé à Cornaux, à l’adresse Grand-Pont 8, ce nouveau projet immobilier propose des surfaces commerciales, administratives et de stockage pensées pour répondre aux besoins actuels des entreprises artisanales, de services et commerciales.
Implanté en zone d’activités économiques, l’immeuble bénéficie d’une excellente accessibilité, d’une conception moderne et d’une grande flexibilité d’aménagement.
UN PROJET CONTEMPORAIN ET FONCTIONNEL
Conçu par le bureau Prost & Prost Sàrl, le bâtiment se distingue par une architecture sobre et contemporaine, intégrée dans son environnement.
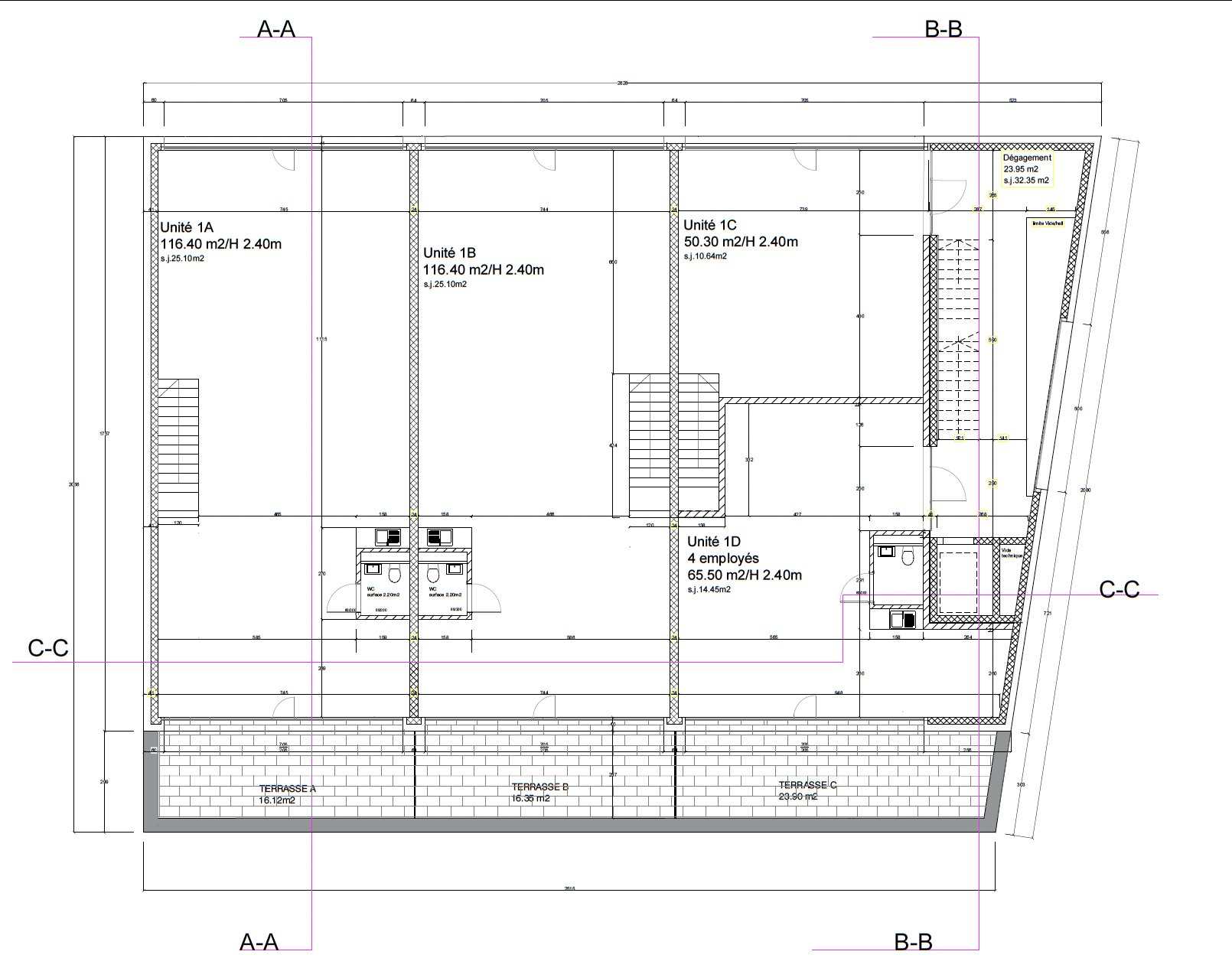
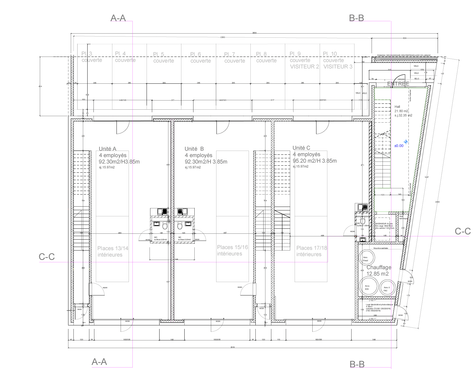
Le projet comprend plusieurs unités indépendantes, certaines organisées en duplex avec atelier au rez-de-chaussée et bureaux à l’étage, ainsi que des surfaces administratives réparties sur les niveaux supérieurs, accessibles par une cage d’escalier commune avec ascenseur.
La construction répond aux normes actuelles en matière de performance énergétique, de sécurité et de confort :
- structure porteuse en béton armé
- isolation thermique périphérique performante
- menuiseries extérieures à double vitrage
- toiture végétalisée
- pompe à chaleur air/eau et panneaux photovoltaïques
DES SURFACES MODULABLES ADAPTÉES À VOTRE ACTIVITÉ
Unités A, B et C :
- Ateliers en rez-de-chaussée (env. 92 à 95 m², hauteur env. 3.85 m)
- Surfaces administratives à l’étage (jusqu’à env. 116 m²)
- Terrasses privatives selon les lots
- Accès direct depuis l’extérieur
Unités D, E et F :
- Surfaces commerciales / administratives aux étages
- Surfaces généreuses (env. 65 à 104 m²)
- Terrasses spacieuses jusqu’à env. 35 m²
- Accès par ascenseur et cage d’escalier commune
Chaque lot dispose :
- D’installations sanitaires adaptées
- D’une mini-cuisine
- D’une installation électrique indépendante
- D’une ventilation mécanique
- Un WC conforme aux normes handicapés est prévu dans l’unité 2F.
ACCESSIBILITÉ ET STATIONNEMENT OPTIMAUX
Le site bénéficie d’une circulation à sens unique autour du bâtiment, facilitant les manœuvres et la logistique.
- places couvertes
- places visiteurs
- place handicapée
- places motos
- local vélos
- Accès rapide à la route cantonale, au bus et à la gare CFF
COMMODITÉS À PROXIMITÉ
- Arrêt de bus à env. 330 m
- Gare CFF de Cornaux à env. 300 m
- Accès rapide à l’axe Neuchâtel – Bienne
